
Key Features
Description
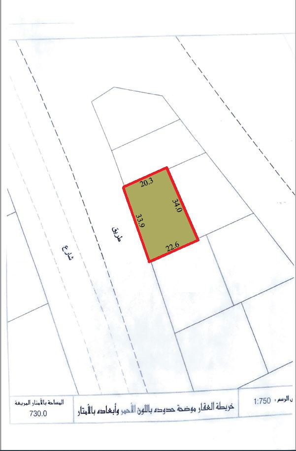
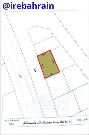
Special Project Land ( SP ) for Lease in Mameer,Albander, Shabathe BD.500/-per month
This exclusive land is located in Albander area, shabathe, having 730 sqm , classified as SP , can use for any projects . Easy access to Sitra, Raszuwaid, ALBA, BAPCO . we are offering BD.500/- per month
Address and Map
More from the same