
Key Features
Description
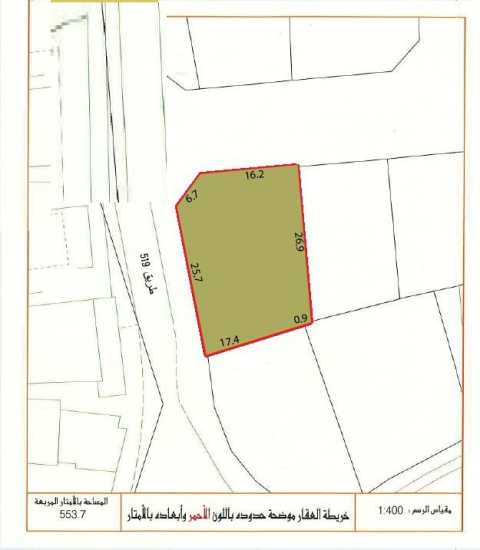
Residential RB Land for Sale in Tubli BD.27/- per foot
This land is located in Tubli, near Hassan Mahmoud Centre, land area is 553.7 Sqm, RB Zone, can built 3 storey residential Villa or Building, we are offering BD.27/- per foot, Total will be BD.160,000/-, two road Corner. Easy access to Jidaali, Salmabad, Isa Town, Jurdab
Amenities
More from the same